Обяви За нас Контакти
Продава 2-СТАЕН
град София, Малинова долина
186 944 €
365 630.68 лв.

(2 337 €, 4 570.77 лв./m2)
Цената е с включено ДДС
История на цената
Публикувана в 10:01 на 25 септември, 2025 год.
Обявата е посетена 255 пъти.
Площ:
80 m2
Етаж:
2-ри от 4
Газ:
НЕ
ТEЦ:
НЕ
Строителство:
Тухла, Ще бъде въведен в експлоатация 2025 г.

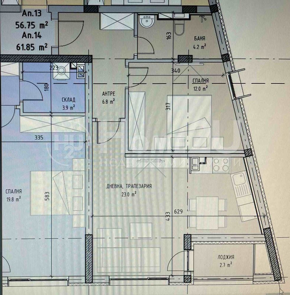
Описание на имота:


АКТ 15 !! СРЕДЕН ЕТАЖ !! ТОП ЛОКАЦИЯ !!

Home2u представя на Вашето внимание двустаен апартамент, находящ се в ж.к 'Малинова долина' в новострояща се жилищна сграда. Сграда се намира в развитата част на ж.к 'Малинова долина' . Функционално разпределение на имота: входно антре, всекидневна с кухненски бокс, спалня, баня с тоалетна и балкон. За Ваше улеснение прилагаме схема на разпредение на имота. Ако желаете да закупите този имот, обадете се СЕГА и цитирайте следниня код: 135273.
Виж всички обяви в home2um.bazar.bg или тук
Особености
Тухла
Асансьор
Контрол на достъпа
За контакт:
0875363330
Агенция:
ХОУМ ТУ Ю БЪЛГАРИЯ
0875363330
ХОУМ ТУ Ю БЪЛГАРИЯ logo
Медал за прослужено време
В imot.bg от 2014 г.
home2um.imot.bg
Адрес:
област София, гр. София, бул. 'Андрей Сахаров' 16 ет. 1
http://www.home2u.bg
ИЗПРАТИ ЗАПИТВАНЕ
ИЗПРАТИ ЗАПИТВАНЕТО

Продава 2-СТАЕН
град София, Малинова долина
Обява: 1b175878367682517

186 944 €
365 630.68 лв.
История на цената
(2 337 €, 4 570.77 лв./m2)

Цената е с включено ДДС
ЗАПАЗИ ОБЯВАТА

Местоположение: град София, Малинова долина

Допълнителни данни за имотите в района и сравнение с други райони: Търсене в АРХИВ 2013 - 2025 г.











Добави/редактирай
вид имот и район
*Средните цени са определени чрез медиана стойност.